• HOME
  • >
  • 展示スペースのご案内

スペース仕様・ギャラリー見取り図

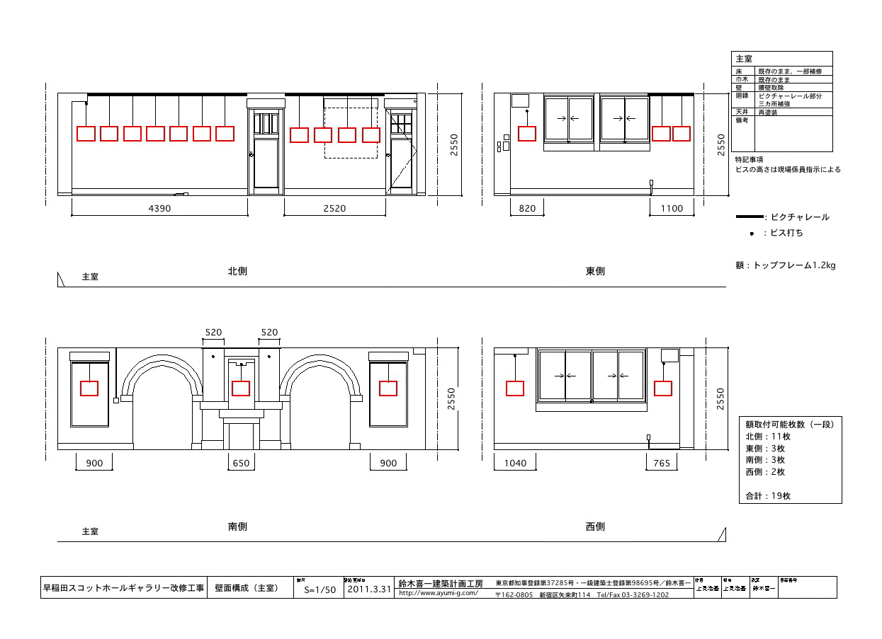
側面図 
赤枠は四つ切(346㎜×422㎜)のサイズです。

面積

約64㎡(前室22㎡・主室42㎡)

天井高

約2.5m

壁面長

約20m

入口

幅約0.8m×高さ1.9m

控室

面積約10㎡

設備

会議用テーブル数台、会議用イス数脚

※会場でお使いいただけるのは、冷蔵庫、プロジェクター、スクリーンなど有料備品についてはフロントにお問合せください。